Search
Close this search box.

Toilettenanhänger Party / Handicap

Produktdatenblatt Party

Produktdatenblatt Handicap

 

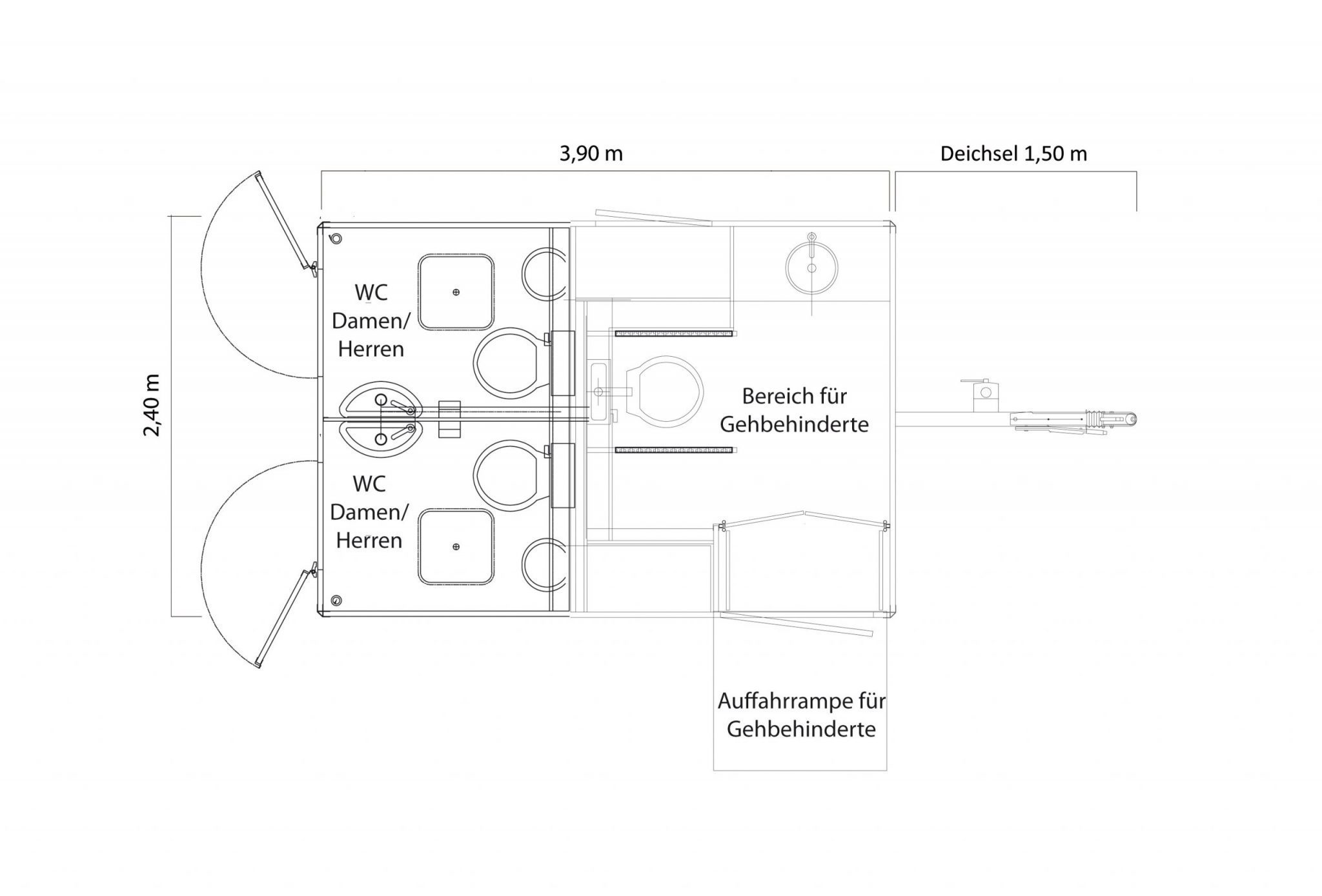
Beschreibung Handicap:

– Toilettenanhänger Handicap – der behindertengerechte Anhänger für Ihre Veranstaltung
– Dieser Toilettenwagen bietet eine behindertengerechte Sanitärlösung und zusätzlich zwei Toiletten. Die Verarbeitung aus hochwertigen Materialien verspricht Sauberkeit und Hygiene. Die am Fahrgestell angebrachten Spindelstützen werden am Aufstellort einfach herabgelassen und das komplette Fahrzeug steht stabil und sicher. Zum Begehen/Befahren des Toilettenanhängers wird eine stabile Rampe herausgeschwenkt.

 

Beschreibung Party:

– Toilettenanhänger Party – unser kleiner Anhänger für Ihre Party bis zu 150 Personen
– Dieser Toilettenwagen bietet zwei Toiletten. Die Verarbeitung aus hochwertigen Materialien verspricht Sauberkeit und Hygiene. Die am Fahrgestell angebrachten Spindelstützen werden am Aufstellort einfach herabgelassen und das komplette Fahrzeug steht stabil und sicher.

 

Ausstattung Handicap / Party: 

– Handicap-Kabine: 1 Toilette, 1 Waschbecken, Seifenspender, Papierspender, Heizung, LED-Beleuchtung, Spiegel und Notsignal
– Zwei weitere Toilettenkabinen (von außen begehbar) mit jeweils: 1x WC, 1x Urinal, 1x Waschbecken, Seifenspender , Papierspender, Heizung, LED-Beleuchtung und Spiegel

 

Technische Beschreibung:

– Maße Innen: 380 x 232 x 230 cm
– Einzelachsfahrgestell mit ZGG 1500 kg
– Stützlast 100 kg
– Lackierung: weiß
– Innendekor: orange/grau
– 1 Zugangstür mit Rampe
– 2 Zugangstüren mit Symbol
– 1x Schuko 230V Stromanschluss
– Geka-Trinkwasseranschluss
– DN100 Abwasseranschluss
– Unser Toilettenanhänger ist winterfest und beheizt.

 

Die Hygieneartikel können direkt über uns preisgünstig bezogen werden.

 

Transport / Aufbau:

– Selbstabholung
– Lieferservice und Anschlussservice gegen Aufpreis

oder